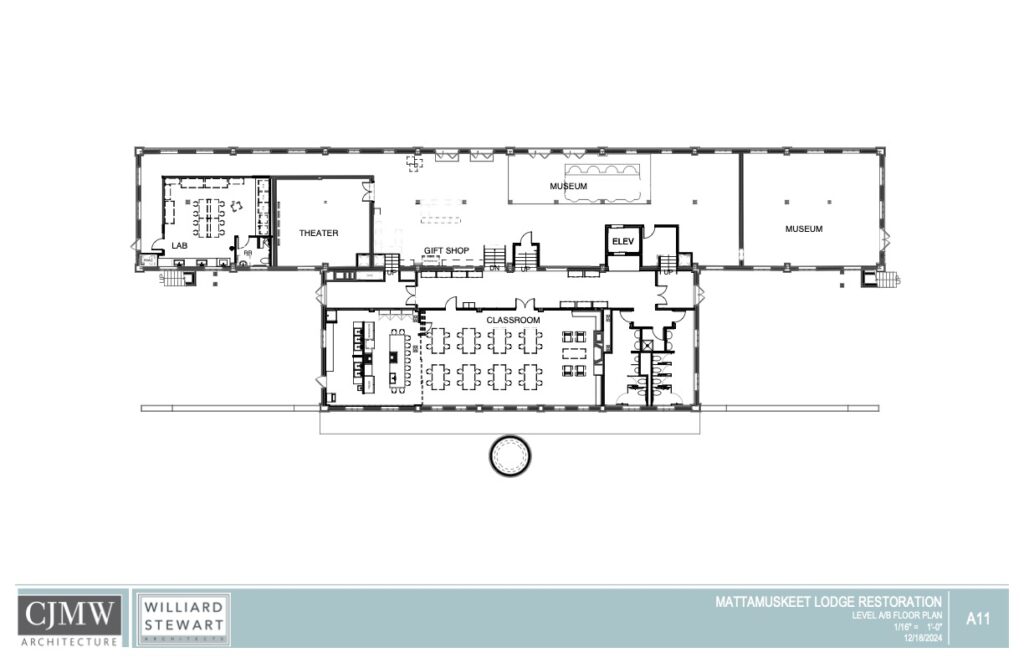
Exciting progress is on the horizon for one of Hyde County’s most treasured landmarks — the Mattamuskeet Lodge. As restoration efforts continue to move forward, we’re thrilled to share a first look at the future floor plans that will bring new life and purpose to this historic building.
The reimagined Lodge will serve as a hub for education, community, and celebration — honoring Hyde County’s deep-rooted history while creating space for new opportunities to grow.
A Museum of Hyde County History:
Visitors will soon be able to explore exhibits that highlight Hyde County’s unique culture, people, and natural heritage. The museum will tell the stories that shaped our community — from agriculture and waterfowl to the resilience of life on the coast.

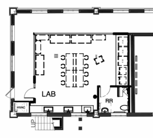
A Laboratory for Research & Collaboration:
A new laboratory will provide space for NC Cooperative Extension and university partners to conduct sample testing and research, supporting agriculture, natural resources, and environmental health in our region.

A Teaching Kitchen & Classroom:
Educational programming will come alive in our new teaching kitchen and classroom space, offering hands-on learning for youth, adults, and families. From nutrition classes to cooking demonstrations and community meetings, this space will bring Extension education directly to the people we serve.

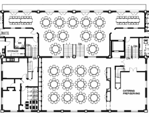
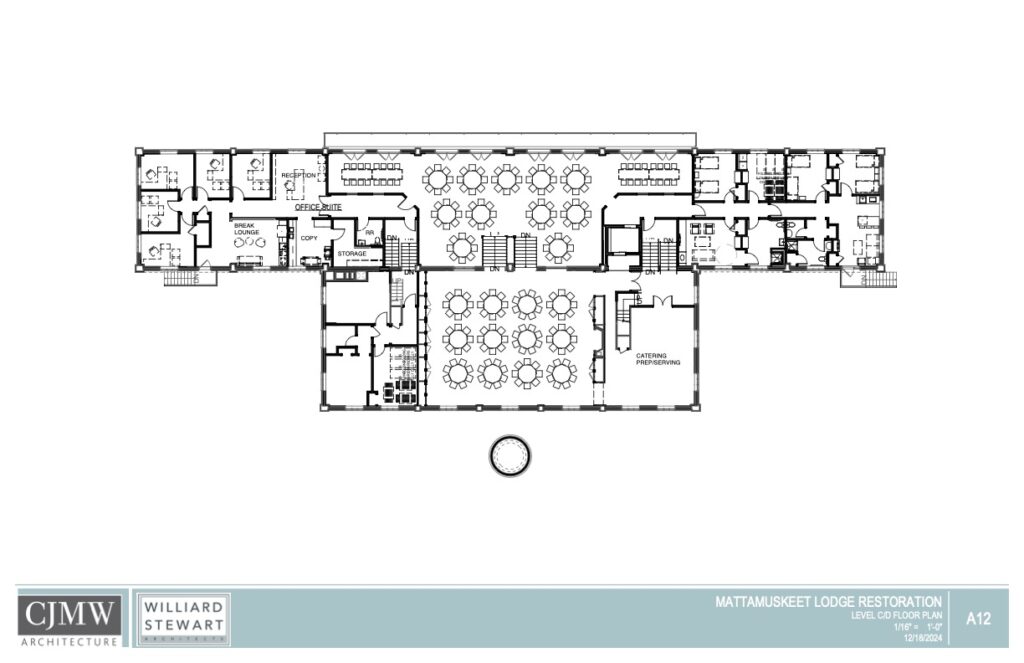
A Ballroom & Event Floor:
The upstairs ballroom will once again host celebrations — from weddings and community events to local gatherings — creating unforgettable memories in one of Hyde County’s most picturesque settings.

Office Space for Hyde County Cooperative Extension:
The Lodge will also become the new home for Hyde County Cooperative Extension offices, offering workspace and meeting areas for staff and partners to continue serving the community through educational programs and outreach.

Bridal Dressing Rooms:
For couples choosing the Lodge as their wedding venue, dedicated bridal dressing rooms will provide a comfortable and elegant space to prepare for their big day — adding a special touch to the event experience.

These plans reflect years of collaboration between Hyde County, the Mattamuskeet Lodge Society, and the State of North Carolina. Together, we’re working toward a future where the Lodge stands once again as a centerpiece of community pride and connection.
Stay tuned for updates as we move closer to restoration — and to the day when we can welcome you back inside the Mattamuskeet Lodge.


